輸送機
環鏈離心斗式提升機
【產品類別】輸送機
【性能評測】★★★★★
【產品簡介】詳細介紹: HL型環鏈離心斗式 提升機 產品概述: HL型環鏈離心斗式提升機適用于垂直輸送磨琢性較大的粉狀、粒狀、及小塊狀物料,如糧食、煤、水泥、碎礦石等,輸送高度最高40m。其
詳細介紹:
HL型環鏈離心斗式提升機產品概述:
HL型環鏈離心斗式提升機適用于垂直輸送磨琢性較大的粉狀、粒狀、及小塊狀物料,如糧食、煤、水泥、碎礦石等,輸送高度最高40m。其特點為,結構簡單,運行平穩,掏取式裝料,混合式或重力卸料,輪緣采用組合鏈輪,更換方便,鏈輪輪緣經特殊處理壽命長,下部如采用重力自動張緊裝置,能保持恒定的張力,避免打滑或脫鏈,同時在料斗遇阻時,有一定的容讓性能夠有效地保護運動部件,物料溫度不超過250℃。
HL型環鏈離心斗式提升機產品概述:
HL型環鏈離心斗式提升機適用于垂直輸送磨琢性較大的粉狀、粒狀、及小塊狀物料,如糧食、煤、水泥、碎礦石等,輸送高度最高40m。其特點為,結構簡單,運行平穩,掏取式裝料,混合式或重力卸料,輪緣采用組合鏈輪,更換方便,鏈輪輪緣經特殊處理壽命長,下部如采用重力自動張緊裝置,能保持恒定的張力,避免打滑或脫鏈,同時在料斗遇阻時,有一定的容讓性能夠有效地保護運動部件,物料溫度不超過250℃。
HL型環鏈離心斗式提升機主要特點:
1.運行平穩、輸送效率高。
2.料斗形式多,應優先選用。
3.適應性強、安裝維修方便、壽命長。
4.整機體積小、轉速高、確??焖倬鶆蜉斔汀?/div>
1.運行平穩、輸送效率高。
2.料斗形式多,應優先選用。
3.適應性強、安裝維修方便、壽命長。
4.整機體積小、轉速高、確??焖倬鶆蜉斔汀?/div>
HL型環鏈離心斗式提升機工作原理:
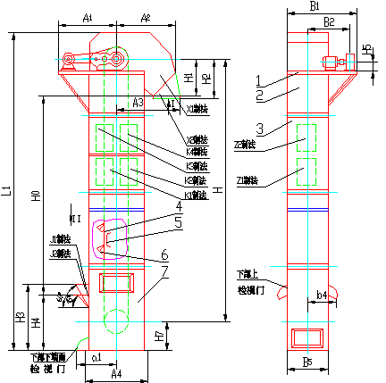
我公司生產的HL型環鏈離心斗式提升機由運動部分(料斗與牽引鏈條)、帶有傳動鏈輪的上部區段、帶有拉緊輪的下部區段、中間機殼、驅動裝置、逆止制動裝置等組成(見下圖)。本提升機的料斗為間斷式布置,利用“掏取法”進行裝載,“離心投料法”卸料。本提升機的牽引機構是兩根環形鏈條。
我公司生產的HL型環鏈離心斗式提升機由運動部分(料斗與牽引鏈條)、帶有傳動鏈輪的上部區段、帶有拉緊輪的下部區段、中間機殼、驅動裝置、逆止制動裝置等組成(見下圖)。本提升機的料斗為間斷式布置,利用“掏取法”進行裝載,“離心投料法”卸料。本提升機的牽引機構是兩根環形鏈條。
HL型環鏈離心斗式提升機制法和裝法:
1、按料斗形狀分為兩種:S制法--帶有深圓底形料斗;Q制法--帶有淺圓底形料斗。
2、按上部區段卸料口的形式分為兩種:X1 制法--帶有傾斜法蘭的卸料口;X2 制法--帶有水平法蘭的卸料口。
3、按下部區段進料口的形式分為兩種:J1 制法--進料口的斜面與水平面成45度角;J2 制法--進料口的斜面與水平面成60度角。
4、按中間機殼側面檢視門的位置分為四種:K1 制法--中間機殼側面帶有下端左檢視門;K2 制法--中間機殼側面帶有下端右檢視門;K3 制法--中間機殼側面帶有上端左檢視門;K4 制法--中間機殼側面帶有上端右檢視門。
5、按中間機殼端面檢視門的位置分為兩種:Z1 制法--中間機殼端面帶有下端檢視門;Z2 制法--中間機殼端面帶有上端檢視門。
6、按傳動裝置對提升機的相對位置分為兩種:左裝--傳動裝置在左側;右裝--傳動裝置在右側。
1、按料斗形狀分為兩種:S制法--帶有深圓底形料斗;Q制法--帶有淺圓底形料斗。
2、按上部區段卸料口的形式分為兩種:X1 制法--帶有傾斜法蘭的卸料口;X2 制法--帶有水平法蘭的卸料口。
3、按下部區段進料口的形式分為兩種:J1 制法--進料口的斜面與水平面成45度角;J2 制法--進料口的斜面與水平面成60度角。
4、按中間機殼側面檢視門的位置分為四種:K1 制法--中間機殼側面帶有下端左檢視門;K2 制法--中間機殼側面帶有下端右檢視門;K3 制法--中間機殼側面帶有上端左檢視門;K4 制法--中間機殼側面帶有上端右檢視門。
5、按中間機殼端面檢視門的位置分為兩種:Z1 制法--中間機殼端面帶有下端檢視門;Z2 制法--中間機殼端面帶有上端檢視門。
6、按傳動裝置對提升機的相對位置分為兩種:左裝--傳動裝置在左側;右裝--傳動裝置在右側。
HL型環鏈離心斗式提升機外形示意圖:
HL型環鏈離心斗式提升機技術參數表:
|
項 目
|
提 升 機 型 號
|
||||||||
|
HL300
|
HL400 | ||||||||
|
S制法
|
Q制法 |
S制法
|
Q制法
|
||||||
|
輸送能力,平方米/小時
|
28 | 16 |
47.2
|
30 | |||||
|
料斗容量,升
|
5.2 | 4.4 | 10.5 | 10 | |||||
|
斗距,毫米
|
500 |
500
|
600 | 600 | |||||
|
運行部分(料斗牽引鏈條)
公斤/米
|
24.8 |
24
|
29.2
|
28.3 | |||||
|
牽引鏈條
|
型式 |
鍛造環形鏈
|
|||||||
| 圓鋼直徑(毫米) | 18 | 18 | |||||||
| 節距 (毫米) | 50 | 50 | |||||||
| 破斷強度(公斤) | 12800 | 12800 | |||||||
|
料斗運動速度(米/秒)
|
1.25
|
1.25
|
|||||||
|
傳動鏈條軸轉數(轉/分)
|
37.5
|
37.5
|
|||||||
|
輸送物料的散狀比重
|
H,米
|
N,千瓦
|
H,米
|
N,千瓦
|
H,米
|
N,千瓦
|
H,米
|
N,千瓦
|
|
|
0.8
|
59 | 6.35 | 64 | 4.36 | 30 | 7 | 33 | 6.3 | |
|
1.0
|
52 | 7.55 | 60 | 5.12 | 27 | 7.6 | 30 | 7 | |
|
1.25
|
41 | 8.7 | 49 | 5.3 | 23 | 8 | 26 | 7.6 | |
|
1.6
|
31 | 9.7 | 39 | 5.3 | 18.5 | 8.4 | 22 | 8.2 | |
|
2.0
|
24 | 9.7 | 29 | 5.35 | 15 | 8.6 | 18 | 8.4 | |
| 傳動裝置制法 | C1 | C2 | C3 | C4 | C1 | C2 | |||
| 圓柱齒輪減速機 | 傳動裝置右裝 | JZQ400—IV—3U | JZQ400—IV—3U | ||||||
| 傳動裝置左裝 | JZQ400—IV—4Y | JZQ400—IV—4Y | |||||||
| 電動機型號 | Y132M2—6 | Y160M—6 | Y160L—6 | Y160M—6 | Y160L—6 | ||||
| 傳動裝置功率(千瓦) | 5.5 | 7.5 | 7.5 | 7.5 | 7.5 | 7.5 | |||
| 棘輪制動裝置(齒輪X模數) | 6X18 | 6X18 | 8X15 | 8X15 | 6X18 | 8X15 | |||
| 傳動裝置重量(公斤) | 628 | 702 | 870 | 885 | 902 | 917 | |||
|
物料的最大塊度(毫米)
|
25
|
35
|
45
|
55
|
|||||
斗式提升機種類分類:
斗式提升機作為一種常用的提升設備,在得到廣泛應用的同時,根據不同行業的要求也有著非常清楚的分類,按照傳動結構可以分為:
(1).TD系列斗式提升機:
TD系列斗式提升機是一種國家標準的斗式提升機,該系列斗式提升機和D系列斗式提升機都是采用的膠帶傳動來提升物料,兩者沒有本質的區別,D系列斗式提升機產品型號較老且型號規格少。TD系列斗式提升機是在D系列斗式提升機的基礎上經過產品改良而來,其規格有TD100(不常用)、TD160、TD250、TD315、TD400、TD500、TD630、TD800、TD1000等型號,其中TD160、TD250、TD315等型號為普遍采用型號.
(2).TH系列斗式提升機:
TH系列斗式提升機是一種常用的提升設備,該系列斗式提升機采用鍛造環鏈作為傳動部分,具有很強的機械強度,主要用于提升粉體和小顆粒及小塊狀物料,區別于TD系列斗式提升機,其提升量更大、運轉效率更高。其常用于較大比重物料的提升。
(3).NE系列斗式提升機:
NE系列斗式提升機是一種新型的斗式提升機,其采用板鏈傳動,區別于老型號TB系列板鏈斗式提升機,其命名方式采用提升量命名而非斗寬。如NE150指的是提升量為150噸一小時而不是斗寬150。NE系列斗式提升機有著很高的提升效率,根據提升速度不同還分有NSE型號及高速板鏈斗式提升機。
(4).TB系列斗式提升機:
TB系列斗式提升機是一種較老型號的斗式提升機,其傳動部分采用板鏈傳動,現已經被NE系列斗式提升機產品替代。
(5).TG系列斗式提升機:
TG系列斗式提升機是一種加強型膠帶斗式提升機,區別于TD系列斗式提升機,TG系列斗式提升機采用鋼絲膠帶作為傳動帶,具有更強的傳動能力。該系列斗式提升機多被應用于糧食輸送上,又被稱呼為糧食專用斗式提升機。
(6).其它型號斗式提升機:
常見的斗式提升機型號還有HL系列斗式提升機、GTD系列斗式提升機、GTH系列斗式提升機等,其均為以上型號的不同叫法和演變形式。
斗式提升機作為一種常用的提升設備,在得到廣泛應用的同時,根據不同行業的要求也有著非常清楚的分類,按照傳動結構可以分為:
(1).TD系列斗式提升機:
TD系列斗式提升機是一種國家標準的斗式提升機,該系列斗式提升機和D系列斗式提升機都是采用的膠帶傳動來提升物料,兩者沒有本質的區別,D系列斗式提升機產品型號較老且型號規格少。TD系列斗式提升機是在D系列斗式提升機的基礎上經過產品改良而來,其規格有TD100(不常用)、TD160、TD250、TD315、TD400、TD500、TD630、TD800、TD1000等型號,其中TD160、TD250、TD315等型號為普遍采用型號.
(2).TH系列斗式提升機:
TH系列斗式提升機是一種常用的提升設備,該系列斗式提升機采用鍛造環鏈作為傳動部分,具有很強的機械強度,主要用于提升粉體和小顆粒及小塊狀物料,區別于TD系列斗式提升機,其提升量更大、運轉效率更高。其常用于較大比重物料的提升。
(3).NE系列斗式提升機:
NE系列斗式提升機是一種新型的斗式提升機,其采用板鏈傳動,區別于老型號TB系列板鏈斗式提升機,其命名方式采用提升量命名而非斗寬。如NE150指的是提升量為150噸一小時而不是斗寬150。NE系列斗式提升機有著很高的提升效率,根據提升速度不同還分有NSE型號及高速板鏈斗式提升機。
(4).TB系列斗式提升機:
TB系列斗式提升機是一種較老型號的斗式提升機,其傳動部分采用板鏈傳動,現已經被NE系列斗式提升機產品替代。
(5).TG系列斗式提升機:
TG系列斗式提升機是一種加強型膠帶斗式提升機,區別于TD系列斗式提升機,TG系列斗式提升機采用鋼絲膠帶作為傳動帶,具有更強的傳動能力。該系列斗式提升機多被應用于糧食輸送上,又被稱呼為糧食專用斗式提升機。
(6).其它型號斗式提升機:
常見的斗式提升機型號還有HL系列斗式提升機、GTD系列斗式提升機、GTH系列斗式提升機等,其均為以上型號的不同叫法和演變形式。
★我公司可根據用戶需要設計制造特殊型號規格的斗式提升機。
★我公司對所有技術資料、尺寸保留修改的權利,如實物與文中圖案不符,應以實物為準。
★我公司對所有技術資料、尺寸保留修改的權利,如實物與文中圖案不符,應以實物為準。
- 相關產品
-
產品類別
PRODUCT CATEGORIES
PRODUCT CATEGORIES
- 聯系方式
-
- 新鄉市宏源振動設備有限公司
- 聯系人:曾經理
- 15560202577
- 70297180@qq.com
- 新鄉市宏力大道西冀場工業園




